Edificio 475 Cerro Concepción, Valparaíso

Ubicación: Calle Papudo 475, cerro Concepción. Valparaíso
Mandante: Inmobiliaria Mar & Cielo
Superficie construida: 446 m2
Superficie áreas exteriores: 12 m2
Materialidad: Muros: piedra, ladrillo, adobe y H. Armado.
Estructura soportante: acero en vigas y pilares.
Tabiques: perfiles de acero galvanizado y Volcanita.
Ventanería: marcos de PVC y termopanel. Madera recuperada y tratada.
Ingeniería estructural: Ing. Sergio Contreras 
Arquitectas colaboradoras: 
Gabriela Toloza
Adriana Urtasun
Imágenes 3D y video
Arqto. Sergio Estay
Año: 2024

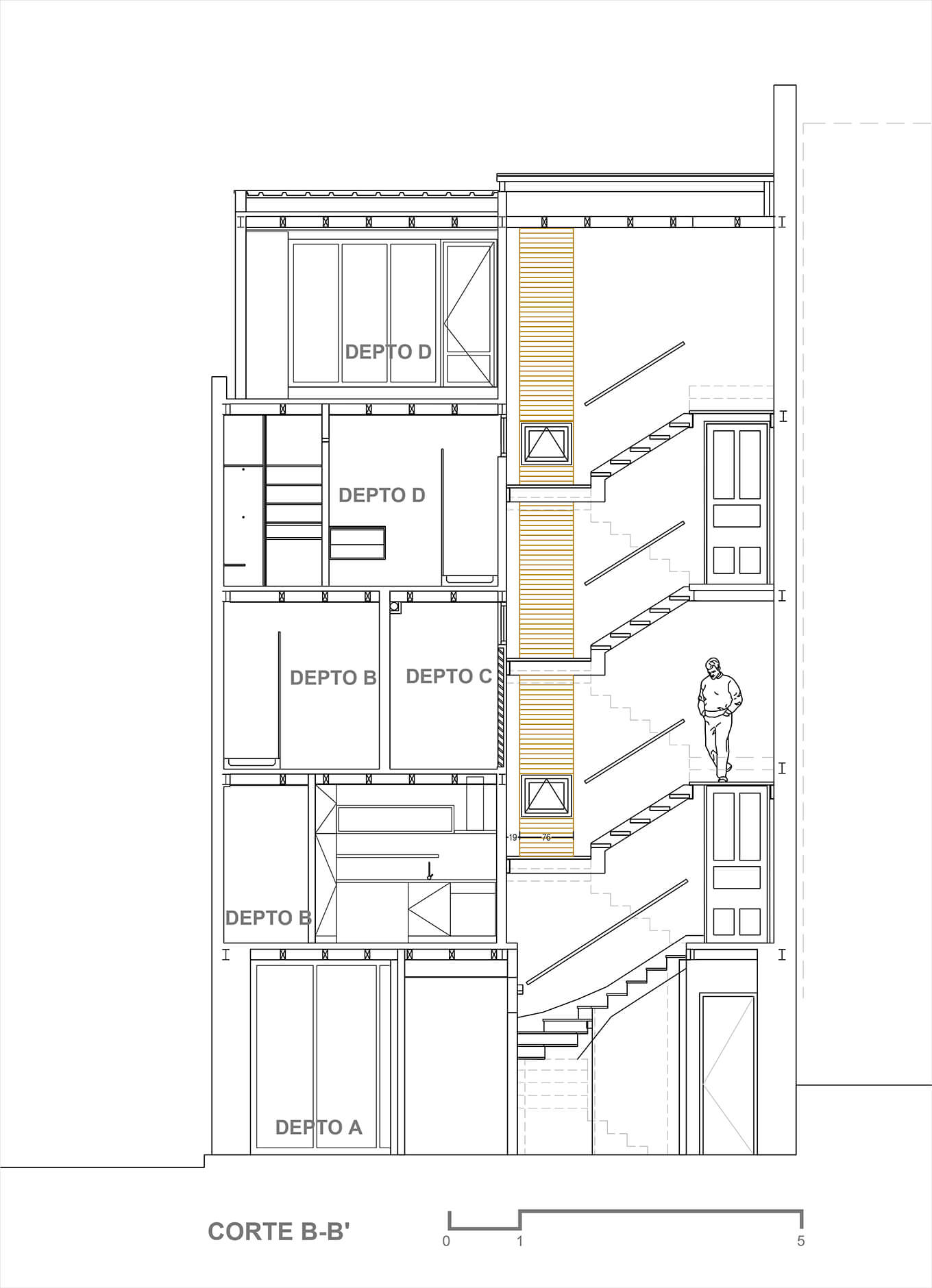
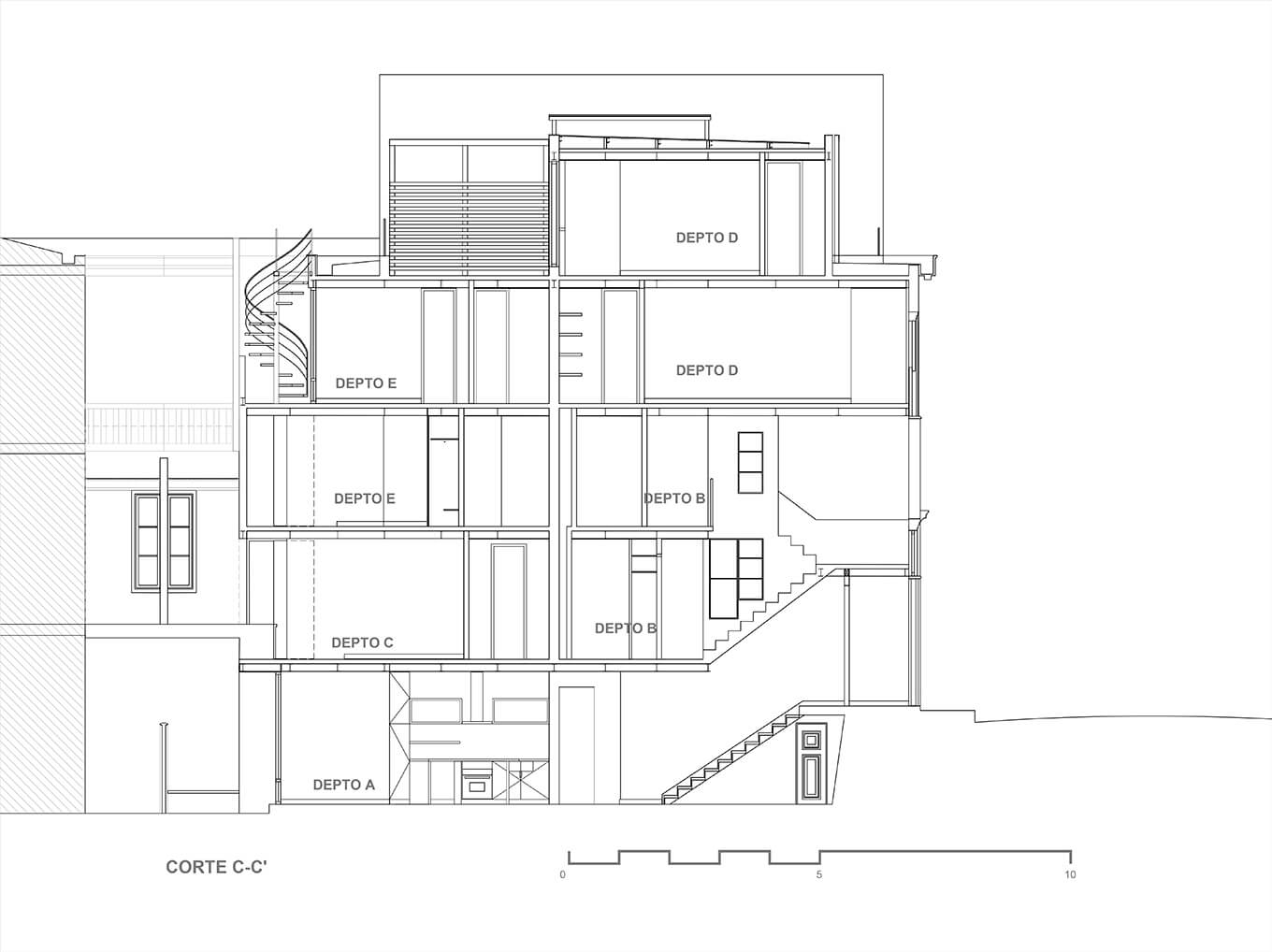
El edificio se ubica en un sector patrimonial y de gran vitalidad en el Cerro Concepción. La operación arquitectónica consistió en transformar una casa centenaria en un edificio de tamaño pequeño que consta de 5 departamentos: 4 dúplex y uno simplex. Se eligió privilegiar una condición introvertida buscando espacios acogedores y versátiles.

Con un lenguaje contemporáneo se aprovechó material de la casa original como madera recuperada, puertas, ventanas, etc. 

Las plantas de cada unidad se van traslapando en la altura lo que le otorga variedad espacial al conjunto con vistas lejanas y cercanas según la orientación de los niveles de cada departamento.

Se espera que este proyecto se sume a la revitalización y recuperación de un sector de especial interés urbano, cultural e histórico.